Property in: LONDON
Property http://www.productontology.org/doc/Real_estate Gordon Road for sale by Luxgrove Homes – New flats in Ealing. ▶ Price from £475,000. Download Brochure. Ealing, London, W5 2AR. Gordon Road 51.515245988399 -0.31205349922514
Gordon Road Luxgrove Homes Gordon Road for sale by Luxgrove Homes – New flats in Ealing. ▶ Price from £475,000. Download Brochure. Ealing, London, W5 2AR. https://1newhomes.com/assets/cities/spb/houses/luxgrove-homes-london/gordon-road/1-1-1.jpg InStock GBP Gordon Road for sale by Luxgrove Homes – New flats in Ealing. ▶ Price from £475,000. Download Brochure. Ealing, London, W5 2AR. 475000

Gordon Road

Developer: Luxgrove Homes Address: Ealing, London, W5 2AR – Ealing Station: West EalingEaling BroadwayDrayton Green Completion: Ready to move Floor area: 46 – 96 sqm
Bedrooms:
from 475,000
AI Summary

Gordon Road W5 offers 1 to 3 bedroom flats from £475,000 (£10,326 per square metre) just 600 metres from Ealing Broadway Station with Central, District and Elizabeth lines for fast links to Central London and Heathrow.

With Ealing’s strong owner occupier and rental demand, a 2 bedroom at £550,000 (£9,821 per square metre) in this low density new build near shops, schools and parks offers long term growth prospects in a key West London transport hub.

Some of the homes enjoy private outdoor spaces!

Properties in this development on 13 April 2026

Bedrooms
Square
Price, sqm
for all
1-bedroom
from 46 sqm
from 10,326
from 475,000
Availability
2-bedroom
from 56 sqm
from 9,821
from 550,000
Availability
3-bedroom
from 96 sqm
from 9,374
from 899,950
Availability
Note: 1 Sq.M = 10.76 Sq.Ft

More information

Key features

Floors: 3
Flats: 9
Apartments
Redevelopment
Educational options
Balcony
Park & riverside walk
Chill out place
Local cafes
Parking
Cycle Parking
GYM
Social space

What are you looking for?

Step 1 of 6
Select the number of bedrooms
Select your budget
What is your purpose of purchase?
What is your preferred payment method?
When do you plan to move
Leave a request and assistant will select the property

By submitting this form, you accept our Terms & conditions & Privacy policy Please note that 1newhomes will send the above details to house developer or agent. This site is protected by reCAPTCHA and the Google.

A virtual assistant
ready to help you
Virtual assistant

What are you looking for?

Payment options

Mortgage
Part Exchange
Shared Ownership
Investment Purchase

Features

Interior design

Interior design – Gordon Road Interior design – Gordon Road Interior design – Gordon Road
10

Description

Buying an apartment in London – How much ROI and profit can it bring in 5 years?

Based on the data by PwC on property prices and rents dynamics.*
2,5—4,5%
annual rental income
5—10%
annual price growth per square meter
Price growth
+ £190,000
Rental income
+ £90,000
£475,000
investment
capital
£750,000
total capital

Local area map

Stations
Schools
Bus Stops
Clinics
Supermarkets
Cafes
GYM
Full address: Ealing, London, W5 2AR – Ealing / W5 / West London / Zone 3

Public Facilities

Schools
Durston House - Pre-School & Pre-Prep
0.3
mil
6
min
Durston House - Junior School
0.3
mil
6
min
Christ the Saviour CE School (Broadway Campus - Juniors)
0.6
mil
12
min
Subway stations
1.3
mil
27
min
1.1
mil
24
min
1.2
mil
27
min
Train stations
0.5
mil
11
min
0.5
mil
12
min
1
mil
22
min
Bus stations
Ealing Police Station (Stop P)
0.5
mil
10
min
Ealing Town Hall (Stop R)
0.5
mil
11
min
Dane Road (Stop N)
0.5
mil
10
min
Cafes
Yayaka - Greek granny’s corner
0.4
mil
9
min
Polka Kitchen
0.5
mil
10
min
Reineta
0.5
mil
10
min
Parks
Longfield Walk
0.2
mil
4
min
Tortoise Green
0.2
mil
4
min
Haven Green
0.4
mil
9
min
Airports
Gatwick
53.3
mil
68
min
London City
27.8
mil
59
min
Heathrow
12.7
mil
28
min

Neighbourhood around Gordon Road

Neighbourhood around Gordon Road

About West London

West London is often synonymous with affluence and prestige, largely due to neighborhoods like Notting Hill, Chelsea, and Maida Vale. Historic white-stucco terraces and garden squares define the inner boroughs. While these areas command steep premiums, they offer an undeniable quality of life, featuring independent boutiques, Michelin-starred restaurants, and quiet canal-side walks. More about West London →

Sales office

Sales office

Learn more

Latest news

Mortgage calculator

Price
Repayment term
Deposit, £
Interest rate, %
£00 000

per month

Stamp duty calculator

Price
I am …

Our Stamp Duty calculator provides illustrative figures for the Stamp Duty (SDLT) in England and Northern Ireland, a required tax paid on property purchases. Read more about SDLT and how it works.

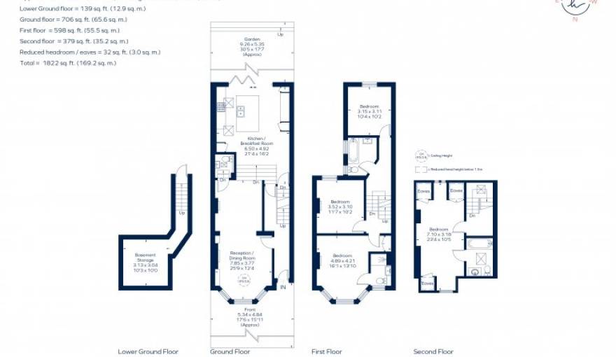
Floor plans for Gordon Road

Developer

Similar homes you may like

Developer offers

FAQs about Gordon Road

Property Details

Expand all
Who is the developer of Gordon Road?
Luxgrove Homes is the developer of Gordon Road.
What is the address of Gordon Road?
The address of Gordon Road is Ealing, London, W5 2AR.
How many flats are there in Gordon Road?
The total number of flats in Gordon Road is 9.
How many total floors does Gordon Road have?
The total number of floors that Gordon Road has is 3 floors.
What is the zone number of Gordon Road?
The zone number of Gordon Road is Zone 3.
Where can I find the Gordon Road site plan?
You can view the Gordon Road Site Plan in the Site Plan section above.
What is the postcode of Gordon Road?
The postcode of Gordon Road is W5
What is the completion date of Gordon Road?
The completion date of Gordon Road is Ready to move

Prices

Expand all
What is the price range of flats in Gordon Road?
The total price range of flats in Gordon Road is £475K – £899.95K

Amenities

Expand all
What facilities are available to residents of Gordon Road?
The facilities available to residents of Gordon Road are Park & Riverside Walk, Parking and Chill out Place.
Which school is located near to Gordon Road?
No one Schools are located near Gordon Road.
Which Subway stations is located near to Gordon Road?
No one Subways stations are located near Gordon Road.
Need help finding your new home?
Need help finding your new home?

Leave a request and specialists will select the property

By submitting this form, you accept our Terms & conditions & Privacy policy Please note that 1newhomes will send the above details to house developer or agent. This site is protected by reCAPTCHA and the Google.

We use our own and third-party cookies to collect data related to your activity on our site for analysis and to improve your experience. By continuing to use our site, you consent to the use of these cookies. Learn more

Ok
Request Callback
Whatsapp