Property in: LONDON
Property http://www.productontology.org/doc/Real_estate SO Resi Westgrove for sale by Metropolitan Thames Valley – New flats in Hendon. ▶ Price from £350,000. Download Brochure. Westhorpe Gardens, Hendon, London, NW4 1TH. SO Resi Westgrove 51.591243403985 -0.21785479975972
SO Resi Westgrove Metropolitan Thames Valley SO Resi Westgrove for sale by Metropolitan Thames Valley – New flats in Hendon. ▶ Price from £350,000. Download Brochure. Westhorpe Gardens, Hendon, London, NW4 1TH. https://1newhomes.com/assets/cities/spb/houses/metropolitan-thames-valley-london/so-resi-westgrove-london/1-1.jpg InStock GBP SO Resi Westgrove for sale by Metropolitan Thames Valley – New flats in Hendon. ▶ Price from £350,000. Download Brochure. Westhorpe Gardens, Hendon, London, NW4 1TH. 350000

SO Resi Westgrove

Developer: Metropolitan Thames Valley Address: Westhorpe Gardens, Hendon, London, NW4 1TH – Hendon Station: Hendon CentralFinchley CentralColindale Completion: Ready to move Floor area: 38 – 63 sqm
Bedrooms:
from 350,000
AI Summary

SO Resi Westgrove, NW4 1TH, delivers 1 beds from £350,000 (37.8 sq m) and 2 beds from £495,000 (62.8 sq m), around £7,900–£9,300 per sq m, under 1 mile to Hendon Central Underground, with 102 units and strong Barnet rental demand.

Shared Ownership from 10 to 75 percent lowers entry cost in Zone 3 Hendon, with Kings Cross in 29 minutes, green roofs and solar panels, underfloor heating, EV parking and multiple primary schools within 1 kilometre supporting long term value.

Sunny Hill Park nearby.

Properties in this development on 18 April 2026

Bedrooms
Square
Price, sqm
for all
1-bedroom
from 38 sqm
from 9,257
from 350,000
Availability
2-bedroom
from 63 sqm
from 7,882
from 495,000
Availability
3-bedroom
Sold Out
Note: 1 Sq.M = 10.76 Sq.Ft

More information

Key features

Floors: 6
Flats: 102
Apartments
Roof terrace
Educational options
Balcony
Park & riverside walk
Chill out place
Parking
Social space
Security

What are you looking for?

Step 1 of 6
Select the number of bedrooms
Select your budget
What is your purpose of purchase?
What is your preferred payment method?
When do you plan to move
Leave a request and assistant will select the property

By submitting this form, you accept our Terms & conditions & Privacy policy Please note that 1newhomes will send the above details to house developer or agent. This site is protected by reCAPTCHA and the Google.

A virtual assistant
ready to help you
Virtual assistant

What are you looking for?

Payment options

Mortgage
Part Exchange
Shared Ownership
Investment Purchase

Features

Interior design

Interior design – SO Resi Westgrove Interior design – SO Resi Westgrove Interior design – SO Resi Westgrove
6

Site Plan

Site plan – SO Resi Westgrove
1

Description

Price trends for SO Resi Westgrove

All

Buying an apartment in London – How much ROI and profit can it bring in 5 years?

Based on the data by PwC on property prices and rents dynamics.*
2,5—4,5%
annual rental income
5—10%
annual price growth per square meter
Price growth
+ £140,000
Rental income
+ £60,000
£350,000
investment
capital
£550,000
total capital

Local area map

Stations
Schools
Bus Stops
Clinics
Supermarkets
Cafes
GYM
Full address: Westhorpe Gardens, Hendon, London, NW4 1TH – Hendon / NW4 / North-West London / Zone 3

Public Facilities

Schools
Hendon Preparatory School & Pre-School
In house
Nancy Reuben Primary School
0.2
mil
5
min
Bell Lane Primary School
0.5
mil
11
min
Subway stations
1
mil
22
min
Train stations
1.4
mil
31
min
Bus stations
Hendon / The Quadrant (Stop U)
0.3
mil
6
min
Hendon Central Station (Stop F)
1
mil
23
min
Hendon Central Station (Stop E)
1
mil
24
min
Cafes
Cafe Vert
0.2
mil
4
min
bp
0.2
mil
4
min
Wild Bean Cafe
0.2
mil
5
min
Parks
MAJ GARDENS LTD
0.5
mil
11
min
Windsor Open Space
0.4
mil
8
min
Pages Of Hendon
0.4
mil
10
min
Airports
Gatwick
69.9
mil
82
min
London City
21
mil
45
min
Heathrow
19
mil
43
min

Neighbourhood around SO Resi Westgrove

Neighbourhood around SO Resi Westgrove

About North West London

North West London is defined by its stark transitions. Moving outward from Central London, the dense Victorian terraces quickly give way to large-scale green spaces and suburban layouts. It is an area that historically attracted academics and creatives to its village-like pockets, a trend that still heavily influences the local atmosphere today. More about North West London →

Sales office

Sales office

Learn more

Latest news

Mortgage calculator

Price
Repayment term
Deposit, £
Interest rate, %
£00 000

per month

Stamp duty calculator

Price
I am …

Our Stamp Duty calculator provides illustrative figures for the Stamp Duty (SDLT) in England and Northern Ireland, a required tax paid on property purchases. Read more about SDLT and how it works.

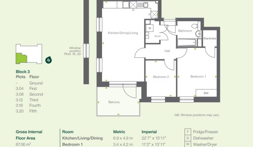
Floor plans for SO Resi Westgrove

Developer

Similar homes you may like

Developer offers

FAQs about SO Resi Westgrove

Property Details

Expand all
Who is the developer of SO Resi Westgrove?
Metropolitan Thames Valley is the developer of SO Resi Westgrove.
What is the address of SO Resi Westgrove?
The address of SO Resi Westgrove is Westhorpe Gardens, Hendon, London, NW4 1TH.
How many flats are there in SO Resi Westgrove?
The total number of flats in SO Resi Westgrove is 102.
How many total floors does SO Resi Westgrove have?
The total number of floors that SO Resi Westgrove has is 6 floors.
What is the zone number of SO Resi Westgrove?
The zone number of SO Resi Westgrove is Zone 3.
Where can I find the SO Resi Westgrove site plan?
You can view the SO Resi Westgrove Site Plan in the Site Plan section above.
What is the postcode of SO Resi Westgrove?
The postcode of SO Resi Westgrove is NW4
What is the completion date of SO Resi Westgrove?
The completion date of SO Resi Westgrove is Ready to move

Prices

Expand all
What is the price range of flats in SO Resi Westgrove?
The total price range of flats in SO Resi Westgrove is £350K – £495K

Amenities

Expand all
What facilities are available to residents of SO Resi Westgrove?
The facilities available to residents of SO Resi Westgrove are Educational Options, Balcony and Chill out Place.
Which school is located near to SO Resi Westgrove?
No one Schools are located near SO Resi Westgrove.
Which Subway stations is located near to SO Resi Westgrove?
No one Subways stations are located near SO Resi Westgrove.
Need help finding your new home?
Need help finding your new home?

Leave a request and specialists will select the property

By submitting this form, you accept our Terms & conditions & Privacy policy Please note that 1newhomes will send the above details to house developer or agent. This site is protected by reCAPTCHA and the Google.

We use our own and third-party cookies to collect data related to your activity on our site for analysis and to improve your experience. By continuing to use our site, you consent to the use of these cookies. Learn more

Ok
Request Callback
Whatsapp