Property in: LONDON
Property http://www.productontology.org/doc/Real_estate 22 Thornton Road for sale by Mantle Developments – New flats in Balham. ▶ Price from £450,000. Download Brochure. Clapham Park, Greater London, SW12 0LF. 22 Thornton Road 51.445835734098 -0.13557588676076
22 Thornton Road Mantle Developments 22 Thornton Road for sale by Mantle Developments – New flats in Balham. ▶ Price from £450,000. Download Brochure. Clapham Park, Greater London, SW12 0LF. https://1newhomes.com/assets/cities/spb/houses/ь-london/22-thornton-road-london/1-1.jpg InStock GBP 22 Thornton Road for sale by Mantle Developments – New flats in Balham. ▶ Price from £450,000. Download Brochure. Clapham Park, Greater London, SW12 0LF. 450000

22 Thornton Road

Developer: Mantle Developments Address: Clapham Park, Greater London, SW12 0LF – Balham Station: Clapham SouthBalhamStreatham Hill Completion: Ready to move Floor area: 50 – 134 sqm
Bedrooms:
from 450,000
AI Summary

22 Thornton Road SW12 offers 1 to 3 bedroom flats from £450,000, c. £8,950 per square metre, 50 to 134 square metres, in a mature Balham and Clapham Park location with Northern line access via Balham and Clapham South stations.

For investors, 2 bedroom units at £650,000 and 72.56 square metres in Zone 3, near Clapham Common and Balham mainline, can target strong rental demand from central London commuters seeking high specification new build stock.

Properties in this development on 23 April 2026

Bedrooms
Square
Price, sqm
for all
1-bedroom
from 50 sqm
from 8,953
from 450,000
Availability
2-bedroom
from 73 sqm
from 8,958
from 650,000
Availability
3-bedroom
from 134 sqm
from 7,453
from 995,000
Availability
Note: 1 Sq.M = 10.76 Sq.Ft

More information

Key features

Floors: 4
Flats: 9
Apartments
Redevelopment
Educational options
Balcony
Park & riverside walk
Chill out place
Local cafes
Social space

What are you looking for?

Step 1 of 6
Select the number of bedrooms
Select your budget
What is your purpose of purchase?
What is your preferred payment method?
When do you plan to move
Leave a request and assistant will select the property

By submitting this form, you accept our Terms & conditions & Privacy policy Please note that 1newhomes will send the above details to house developer or agent. This site is protected by reCAPTCHA and the Google.

A virtual assistant
ready to help you
Virtual assistant

What are you looking for?

Payment options

Mortgage
Part Exchange
Shared Ownership
Investment Purchase

Features

Interior design

Interior design – 22 Thornton Road Interior design – 22 Thornton Road Interior design – 22 Thornton Road
10

Description

Price trends for 22 Thornton Road

All

Buying an apartment in London – How much ROI and profit can it bring in 5 years?

Based on the data by PwC on property prices and rents dynamics.*
2,5—4,5%
annual rental income
5—10%
annual price growth per square meter
Price growth
+ £180,000
Rental income
+ £80,000
£450,000
investment
capital
£710,000
total capital

Local area map

Stations
Schools
Bus Stops
Clinics
Supermarkets
Cafes
GYM
Full address: Clapham Park, Greater London, SW12 0LF – Balham / SW12 / South-West London / Zone 2

Public Facilities

Schools
St Bede's Catholic Infant & Nursery School
0.1
mil
2
min
Telferscot Primary School
0.4
mil
8
min
Henry Cavendish Primary School
0.4
mil
9
min
Subway stations
0.9
mil
20
min
0.9
mil
19
min
Train stations
0.7
mil
17
min
0.8
mil
18
min
Bus stations
Abbeville Road (Stop SJ)
0.7
mil
14
min
Abbeville Road (Stop SM)
0.7
mil
15
min
Balham New Road (Stop F)
0.7
mil
16
min
Cafes
Hyde Farm Café
0.4
mil
8
min
Henry's Coffee Stop
0.5
mil
10
min
Just Jenny's Café & Restaurant, Balham
0.5
mil
11
min
Parks
Birkwood Close Green
0.2
mil
5
min
Agnes Riley Gardens
0.3
mil
6
min
Fortrose Gardens Green
0.3
mil
8
min
Airports
Gatwick
24.9
mil
64
min
London City
14.4
mil
52
min
Heathrow
18.5
mil
49
min

Neighbourhood around 22 Thornton Road

Neighbourhood around 22 Thornton Road

About South West London

South West London represents one of the most desirable residential corridors in the capital. The northern edge of the area—comprising Belgravia, South Kensington, and Chelsea—operates as the traditional heart of prime London real estate. Defined by grand Victorian townhouses, garden squares, and high-end retail, these neighborhoods cater exclusively to ultra-high-net-worth buyers and international investors. More about South West London →

Sales office

Sales office

Learn more

Latest news

Mortgage calculator

Price
Repayment term
Deposit, £
Interest rate, %
£00 000

per month

Stamp duty calculator

Price
I am …

Our Stamp Duty calculator provides illustrative figures for the Stamp Duty (SDLT) in England and Northern Ireland, a required tax paid on property purchases. Read more about SDLT and how it works.

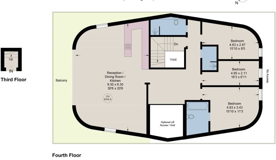
Floor plans for 22 Thornton Road

Developer

Similar homes you may like

Developer offers

FAQs about 22 Thornton Road

Property Details

Expand all
Who is the developer of 22 Thornton Road?
Mantle Developments is the developer of 22 Thornton Road.
What is the address of 22 Thornton Road?
The address of 22 Thornton Road is Clapham Park, Greater London, SW12 0LF.
How many flats are there in 22 Thornton Road?
The total number of flats in 22 Thornton Road is 9.
How many total floors does 22 Thornton Road have?
The total number of floors that 22 Thornton Road has is 4 floors.
What is the zone number of 22 Thornton Road?
The zone number of 22 Thornton Road is Zone 2.
Where can I find the 22 Thornton Road site plan?
You can view the 22 Thornton Road Site Plan in the Site Plan section above.
What is the postcode of 22 Thornton Road?
The postcode of 22 Thornton Road is SW12
What is the completion date of 22 Thornton Road?
The completion date of 22 Thornton Road is Ready to move

Prices

Expand all
What is the price range of flats in 22 Thornton Road?
The total price range of flats in 22 Thornton Road is £450K – £995K

Amenities

Expand all
What facilities are available to residents of 22 Thornton Road?
The facilities available to residents of 22 Thornton Road are Balcony, Chill out Place and Local Cafes.
Which school is located near to 22 Thornton Road?
No one Schools are located near 22 Thornton Road.
Which Subway stations is located near to 22 Thornton Road?
No one Subways stations are located near 22 Thornton Road.
Need help finding your new home?
Need help finding your new home?

Leave a request and specialists will select the property

By submitting this form, you accept our Terms & conditions & Privacy policy Please note that 1newhomes will send the above details to house developer or agent. This site is protected by reCAPTCHA and the Google.

We use our own and third-party cookies to collect data related to your activity on our site for analysis and to improve your experience. By continuing to use our site, you consent to the use of these cookies. Learn more

Ok
Request Callback
Whatsapp