Old Royal Chace EN2 offers 64 low rise homes, with one bedroom flats from 50.88 square metres at 375,000 pounds, around 7,370 pounds per square metre, undercutting many Zone 5 new builds while staying 15 miles from central London.
Strong commuter location near Gordon Hill station, 1.6 kilometres away with direct trains, plus Piccadilly line at Oakwood and Cockfosters, M25 and A10 access, hospitals within one kilometre and primary school 2 kilometres, supporting rental demand.
1 and 2-bedroom apartments; 2 and 3-bedroom houses.
Old Royal Chace is in Enfield, North London, in the EN2 area. It's a residential spot known for its established neighborhoods and easy access to the countryside. Located on The Ridgeway, Old Royal Chace is about 15 miles from central London, which is great for people who want to live outside the city but still be close to it. The area has mostly low-density housing, lots of green space, and a strong community feel, which keeps demand for homes steady.
Good transportation is a key thing about Old Royal Chase. The Gordon Hill train station is close enough to walk to, and it offers direct rides to places like Alexandra Palace, Hertford, and Stevenage. You can also get to the Underground by taking a short drive to the Oakwood and Cockfosters stations on the Piccadilly Line. Plus, major roads like the A10 and M25 are nearby, making it easy to get around the region. A map shows how close it is to schools, parks, hospitals, and stores, which makes life easier.
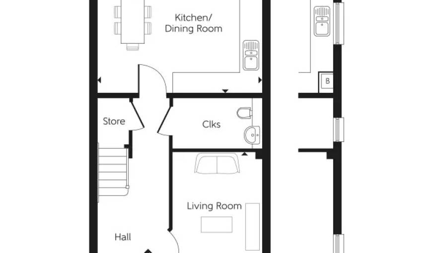
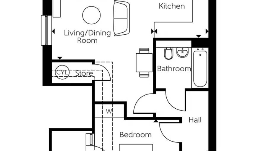
Old Royal Chace has 64 homes total, with one- and two-bedroom apartments and two- and three-bedroom houses. The buildings have a modern, low-rise look that blends in with the area. Apartments are about 51 to 63 square meters in size, with layouts that work well for today’s lifestyles.
Inside, the focus is on usefulness and comfort. Some homes have private balconies, and the houses have their own gardens. There’s allocated parking for everyone, which is really helpful. The variety of properties attracts all kinds of people, from those buying their first home to families and professionals. Photos show the outside materials, inside finishes, and gardens without making things seem too fancy.
You can buy homes at Old Royal Chase now. One-bedroom apartments start at £375,000, and three-bedroom homes cost more. Some types of units have already sold out. These prices make it a good deal in the North London market, especially compared to other new homes in Zone 5. The price per square meter matches the quality and local demand.
If you're thinking about investing, the development has consistent rental demand and potential capital growth because of the area's infrastructure and good schools. Market data from the past shows it performs well, which makes it good for buyers who want long-term value instead of quick gains. Clear information, set layouts, and the fact that it’s ready to move into make it easier to decide if you want to buy a home here that was built by a well-known national builder.
DisclaimerWe have created an automatic ranking system for new-build homes in London based on several critical features around the development, like schools, parks, and transport infrastructure.
We have developed this new analytical tool to calculate the scores based on the location data. Note that AutoScore values are not set by us or anyone else – everything happens automatically.
1-bedroom flats from £375,000
3-bedroom flats from £680,000
On sale now! Register your interest on this website. Get the best offer!
The Old Royal Chace development in Enfield has been successfully completed. Built on the site of the former Royal Chace Hotel, the project includes 64 modern homes, featuring a mix of one- and two-bedroom apartments as well as two- and three-bedroom houses. With allocated parking and gardens for select units, the development offers a comfortable and well-connected living environment in a sought-after area.
Each home at Fielders Quarter benefits from allocated parking, providing convenience for residents. Additionally, all houses come with private gardens, creating a perfect outdoor space for relaxation and family activities.
1-bedroom flats from £ 399995
2-bedroom flats from £ 420000
3-bedroom flats from £ 630000
On sale now! Register your interest on this website. Get the best offer!
Prepare for an extraordinary experience as Old Royal Chase introduces its latest show home on Saturday, April 27th, 2024.
Nestled in Enfield, these new residences offer a tranquil escape approximately 15 miles away from the bustling heart of central London, surrounded by picturesque countryside vistas.
Step into The Parkman, a meticulously designed 3-storey, 3-bedroom show home crafted by an award-winning interior designer, and envision your ideal lifestyle.
Explore a range of properties for sale, including 1 & 2-bedroom apartments and 2 & 3-bedroom houses, with prices starting from £410,000 for apartments, £565,000 for terrace homes, and £700,000 for townhouses.
1-bedroom flats from £ 420000
2-bedroom flats from £ 470000
3-bedroom flats from £ 699995
On sale now! Register your interest on this website. Get the best offer!
£1,000 a month when you move with us
We'll pay £1,000 a month towards your mortgage for up to two years, saving you up to £24,000 on your new home.* Whether you’re looking for your first home, more space, or a fresh start – you can move with us. Ask your sales advisor for more details.
Available on selected plots.
We are thrilled to introduce Old Royal Chace, a captivating development of brand-new homes nestled in the picturesque town of Enfield. Located just approximately 15 miles from central London and surrounded by the serene beauty of open countryside, this development promises an idyllic lifestyle for its future residents.
Old Royal Chace is set to capture the hearts of a diverse range of homebuyers, including families seeking spacious abodes, first-time buyers embarking on their homeownership journey, and professionals who value both the tranquility of Enfield and the accessibility to London's bustling cityscape.
With a price range spanning from £420,000 to £750,000, Old Royal Chace offers an array of housing options to suit various budgets and preferences. Whether you're looking for a cozy family home or a chic urban dwelling, this development has something to offer everyone.
The allure of Old Royal Chace extends far beyond its impeccable homes. It's an opportunity to embrace a lifestyle that balances the charms of suburban living with convenient proximity to the vibrant heart of the capital.
Don't miss out on the chance to be part of this exciting new community in Enfield. Old Royal Chace is your gateway to a harmonious blend of countryside tranquility and city excitement. Discover the future of Greater London living today!
Receive up to £10,000 to spend on your home, your way.
We're offering up to £10,000 to spend on your home, whether that's lowering your mortgage payments, upgrading your kitchen, or landscaping your garden – the choice is yours. Terms and conditions apply. Contact our team for further details
Leave a request and specialists will select the property