Property in: LONDON
Property http://www.productontology.org/doc/Real_estate Shalford Lodge for sale by Kidbrook Homes – New flats in Kingston upon Thames. ▶ Price from £595,000. Download Brochure. Kingston Hill, Kingston Upon Thames, KT2. Shalford Lodge 51.426950829826 -0.27347687521853
Shalford Lodge Kidbrook Homes Shalford Lodge for sale by Kidbrook Homes – New flats in Kingston upon Thames. ▶ Price from £595,000. Download Brochure. Kingston Hill, Kingston Upon Thames, KT2. https://1newhomes.com/assets/cities/spb/houses/kidbrook-homes-london/shalford-lodge-london/1-5.jpg InStock GBP Shalford Lodge for sale by Kidbrook Homes – New flats in Kingston upon Thames. ▶ Price from £595,000. Download Brochure. Kingston Hill, Kingston Upon Thames, KT2. 595000

Shalford Lodge

Developer: Kidbrook Homes Address: Kingston Hill, Kingston Upon Thames, KT2 – Kingston upon Thames Station: Norbiton Completion: Ready to move Floor area: 70 – 124 sqm
Bedrooms:
from 595,000
AI Summary

Shalford Lodge on Kingston Hill, KT2 offers 2-bedroom and 3-bedroom new-build homes from £595,000; low-density Royal Borough setting, limited local supply and energy-efficient construction support steady capital resilience for owner-occupiers and investors.

New 2-bedroom and 3-bedroom apartments from £595,000 in Kingston upon Thames KT2 with direct links to central London; nearby independent shops, green space and health amenities cut daily travel and suit families and commuting professionals.

All apartment PEA "A" rated.

Properties in this development on 17 April 2026

Bedrooms
Square
Price, sqm
for all
2-bedroom
from 70 sqm
from 8,505
from 595,000
Availability
3-bedroom
from 124 sqm
from 8,063
from 1,000,000
Availability
Note: 1 Sq.M = 10.76 Sq.Ft

More information

Key features

Floors: 3
Flats: 13
Apartments
Redevelopment
Nursery
Educational options
Balcony
Health club
Park & riverside walk
Chill out place
Local cafes
Parking
Social space
Security

What are you looking for?

Step 1 of 6
Select the number of bedrooms
Select your budget
What is your purpose of purchase?
What is your preferred payment method?
When do you plan to move
Leave a request and assistant will select the property

By submitting this form, you accept our Terms & conditions & Privacy policy Please note that 1newhomes will send the above details to house developer or agent. This site is protected by reCAPTCHA and the Google.

A virtual assistant
ready to help you
Virtual assistant

What are you looking for?

Payment options

Mortgage
Part Exchange
Shared Ownership
Investment Purchase

Features

Interior design

Interior design – Shalford Lodge Interior design – Shalford Lodge Interior design – Shalford Lodge
5

Site Plan

Site plan – Shalford Lodge
Site plan – Shalford Lodge
2

Description

Price trends for Shalford Lodge

All

Buying an apartment in London – How much ROI and profit can it bring in 5 years?

Based on the data by PwC on property prices and rents dynamics.*
2,5—4,5%
annual rental income
5—10%
annual price growth per square meter
Price growth
+ £240,000
Rental income
+ £110,000
£595,000
investment
capital
£940,000
total capital

Local area map

Full address: Kingston Hill, Kingston Upon Thames, KT2 – Kingston upon Thames / KT1 / South-West London / Zone 5

Neighbourhood around Shalford Lodge

Neighbourhood around Shalford Lodge

About South West London

South West London represents one of the most desirable residential corridors in the capital. The northern edge of the area—comprising Belgravia, South Kensington, and Chelsea—operates as the traditional heart of prime London real estate. Defined by grand Victorian townhouses, garden squares, and high-end retail, these neighborhoods cater exclusively to ultra-high-net-worth buyers and international investors. More about South West London →

Sales office

Sales office

Learn more

Latest news

Mortgage calculator

Price
Repayment term
Deposit, £
Interest rate, %
£00 000

per month

Stamp duty calculator

Price
I am …

Our Stamp Duty calculator provides illustrative figures for the Stamp Duty (SDLT) in England and Northern Ireland, a required tax paid on property purchases. Read more about SDLT and how it works.

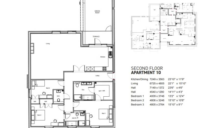
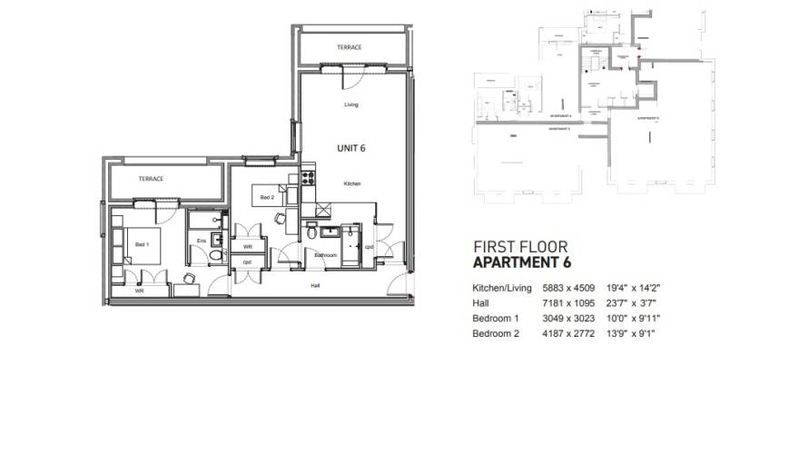
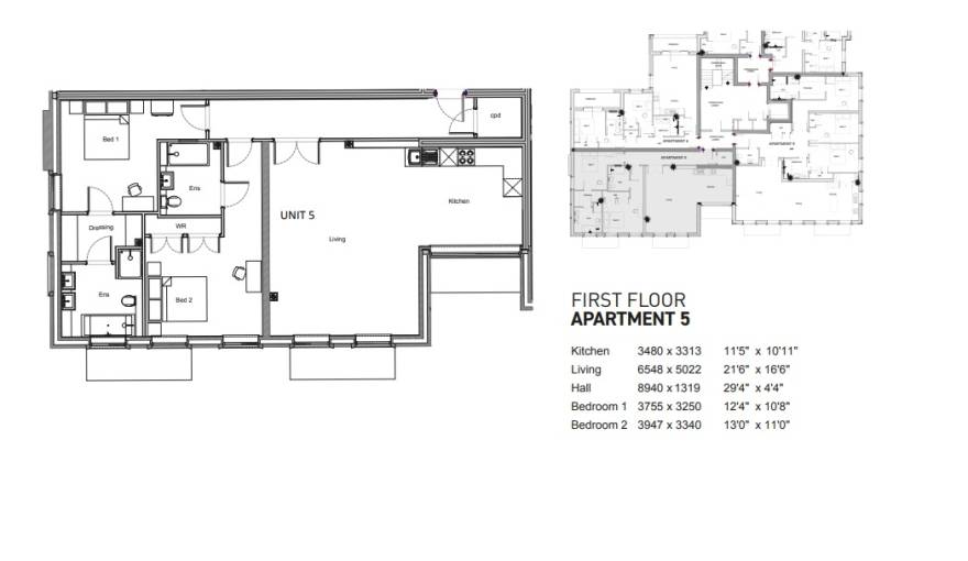
Floor plans for Shalford Lodge

Developer

Similar homes you may like

Developer offers

FAQs about Shalford Lodge

Property Details

Expand all
Who is the developer of Shalford Lodge?
Kidbrook Homes is the developer of Shalford Lodge.
What is the address of Shalford Lodge?
The address of Shalford Lodge is Kingston Hill, Kingston Upon Thames, KT2.
How many flats are there in Shalford Lodge?
The total number of flats in Shalford Lodge is 13.
How many total floors does Shalford Lodge have?
The total number of floors that Shalford Lodge has is 3 floors.
What is the zone number of Shalford Lodge?
The zone number of Shalford Lodge is Zone 5.
Where can I find the Shalford Lodge site plan?
You can view the Shalford Lodge Site Plan in the Site Plan section above.
What is the postcode of Shalford Lodge?
The postcode of Shalford Lodge is KT1
What is the completion date of Shalford Lodge?
The completion date of Shalford Lodge is Ready to move

Prices

Expand all
What is the price range of flats in Shalford Lodge?
The total price range of flats in Shalford Lodge is £595K – £1M

Amenities

Expand all
What facilities are available to residents of Shalford Lodge?
The facilities available to residents of Shalford Lodge are Balcony, Chill out Place and Local Cafes.
Which school is located near to Shalford Lodge?
No one Schools are located near Shalford Lodge.
Which Subway stations is located near to Shalford Lodge?
No one Subways stations are located near Shalford Lodge.
Need help finding your new home?
Need help finding your new home?

Leave a request and specialists will select the property

By submitting this form, you accept our Terms & conditions & Privacy policy Please note that 1newhomes will send the above details to house developer or agent. This site is protected by reCAPTCHA and the Google.

We use our own and third-party cookies to collect data related to your activity on our site for analysis and to improve your experience. By continuing to use our site, you consent to the use of these cookies. Learn more

Ok
Request Callback
Whatsapp