Property in: LONDON
Property http://www.productontology.org/doc/Real_estate Sheepcote Road for sale by Pocket Living – New flats in Harrow. ▶ Price from £272,000. Download Brochure. Sheepcote Road, London HA1 2JN. Sheepcote Road 51.582283185854 -0.33105493926047
Sheepcote Road Pocket Living Sheepcote Road for sale by Pocket Living – New flats in Harrow. ▶ Price from £272,000. Download Brochure. Sheepcote Road, London HA1 2JN. https://1newhomes.com/assets/cities/spb/houses/pocket-living-london/sheepcote-road-london/1-22.jpg InStock GBP Sheepcote Road for sale by Pocket Living – New flats in Harrow. ▶ Price from £272,000. Download Brochure. Sheepcote Road, London HA1 2JN. 272000

Sheepcote Road

Developer: Pocket Living Address: Sheepcote Road, London HA1 2JN – Harrow Station: Harrow-on-the-HillKentonNorthwick Park Completion: Ready to move Floor area: 39 – 39 sqm
Bedrooms:
from 272,000
AI Summary

Sheepcote Road HA1 offers 149 one bedroom flats from 272,000, around 7,028 pounds per square metre, in Zone 4, 720 metres from Harrow on the Hill, with 20 minute Metropolitan Line access to Baker Street and three major parks within 1.6 kilometres.

Completed Pocket Living scheme with 38.7 square metre units, 16 wheelchair adapted homes and rooftop terraces, 80 metres to main bus stops and under 600 metres to Tesco, Lidl, Marks and Spencer and over five gyms, ideal for first time buyers.

Homes designed for individuals with special needs.
 

Properties in this development on 23 April 2026

Bedrooms
Square
Price, sqm
for all
1-bedroom
from 39 sqm
from 7,028
from 272,000
Availability
Note: 1 Sq.M = 10.76 Sq.Ft

More information

Key features

Floors: 8
Flats: 149
Apartments
Redevelopment
Roof terrace
Balcony
Park & riverside walk
Chill out place
Local cafes
Social space
Coworking

What are you looking for?

Step 1 of 6
Select the number of bedrooms
Select your budget
What is your purpose of purchase?
What is your preferred payment method?
When do you plan to move
Leave a request and assistant will select the property

By submitting this form, you accept our Terms & conditions & Privacy policy Please note that 1newhomes will send the above details to house developer or agent. This site is protected by reCAPTCHA and the Google.

A virtual assistant
ready to help you
Virtual assistant

What are you looking for?

Payment options

Mortgage
Part Exchange
Shared Ownership
Investment Purchase

Features

Interior design

Interior design – Sheepcote Road Interior design – Sheepcote Road Interior design – Sheepcote Road
5

Site Plan

Site plan – Sheepcote Road
1

Description

Price trends for Sheepcote Road

All

Buying an apartment in London – How much ROI and profit can it bring in 5 years?

Based on the data by PwC on property prices and rents dynamics.*
2,5—4,5%
annual rental income
5—10%
annual price growth per square meter
Price growth
+ £110,000
Rental income
+ £50,000
£272,000
investment
capital
£430,000
total capital

Local area map

Stations
Schools
Bus Stops
Clinics
Supermarkets
Cafes
GYM
Full address: Sheepcote Road, London HA1 2JN – Harrow / HA1 / North-West London / Zone 4

Public Facilities

Schools
Elmgrove Children's Centre
0.7
mil
14
min
Elmgrove Primary School & Nursery
0.8
mil
15
min
St Anselm's Catholic Primary School
0.8
mil
16
min
Subway stations
0.5
mil
9
min
0.8
mil
15
min
0.7
mil
14
min
Train stations
0.4
mil
9
min
0.8
mil
15
min
0.8
mil
16
min
Bus stations
Sheepcote Road (Stop S)
0.1
mil
1
min
Harrow Town Cen St John's Rd (Stop H)
0.1
mil
2
min
Harrow Town Cen Sheepcote Rd (Stop R)
0.2
mil
3
min
Cafes
Caffè Nero Harrow - St Anns
0.3
mil
7
min
Greggs
0.4
mil
7
min
Harry's Cafe
0.3
mil
5
min
Parks
Lowlands Recreation Ground
0.5
mil
11
min
Safarihub
0.3
mil
6
min
Harrow Recreation Ground
0.8
mil
16
min
Airports
Gatwick
56.8
mil
73
min
London City
26.8
mil
60
min
Heathrow
12
mil
36
min

AutoScore Ranking

schools
cafes
transport
parks
airports

We have created an automatic ranking system for new-build homes in London based on several critical features around the development, like schools, parks, and transport infrastructure.

We have developed this new analytical tool to calculate the scores based on the location data. Note that AutoScore values are not set by us or anyone else – everything happens automatically.

Neighbourhood around Sheepcote Road

Neighbourhood around Sheepcote Road

About North West London

North West London is defined by its stark transitions. Moving outward from Central London, the dense Victorian terraces quickly give way to large-scale green spaces and suburban layouts. It is an area that historically attracted academics and creatives to its village-like pockets, a trend that still heavily influences the local atmosphere today. More about North West London →

Sales office

Sales office

Learn more

Latest news

Mortgage calculator

Price
Repayment term
Deposit, £
Interest rate, %
£00 000

per month

Stamp duty calculator

Price
I am …

Our Stamp Duty calculator provides illustrative figures for the Stamp Duty (SDLT) in England and Northern Ireland, a required tax paid on property purchases. Read more about SDLT and how it works.

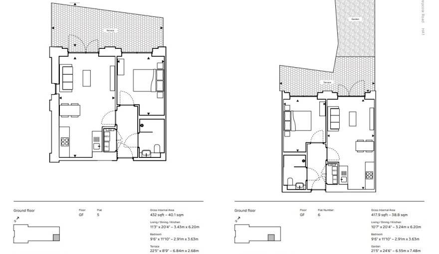
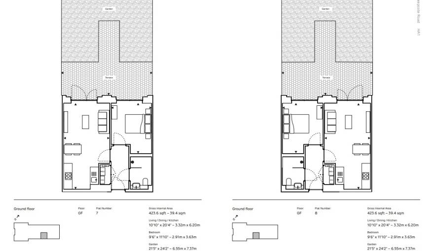
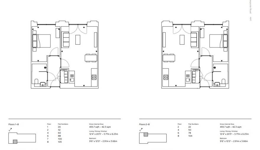
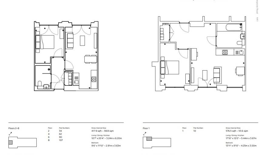
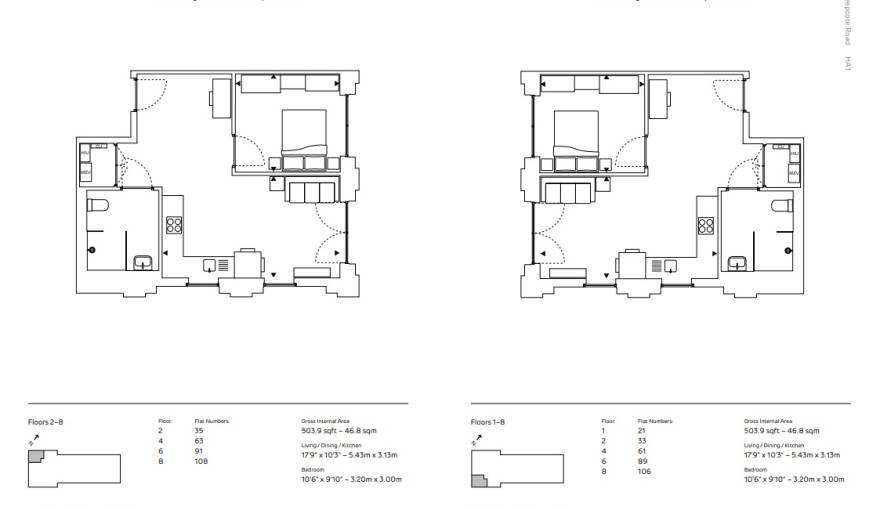
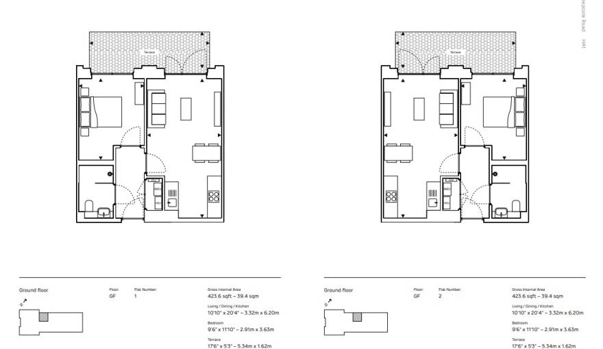
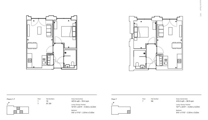
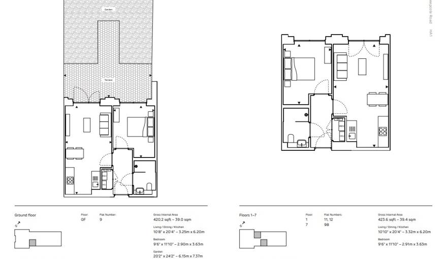
Floor plans for Sheepcote Road

Developer

Similar homes you may like

Developer offers

FAQs about Sheepcote Road

Property Details

Expand all
Who is the developer of Sheepcote Road?
Pocket Living is the developer of Sheepcote Road.
What is the address of Sheepcote Road?
The address of Sheepcote Road is Sheepcote Road, London HA1 2JN.
How many flats are there in Sheepcote Road?
The total number of flats in Sheepcote Road is 149.
How many total floors does Sheepcote Road have?
The total number of floors that Sheepcote Road has is 8 floors.
What is the zone number of Sheepcote Road?
The zone number of Sheepcote Road is Zone 4.
Where can I find the Sheepcote Road site plan?
You can view the Sheepcote Road Site Plan in the Site Plan section above.
What is the postcode of Sheepcote Road?
The postcode of Sheepcote Road is HA1
What is the completion date of Sheepcote Road?
The completion date of Sheepcote Road is Ready to move

Prices

Expand all
What is the price range of flats in Sheepcote Road?
The total price range of flats in Sheepcote Road is £272K – £272K

Amenities

Expand all
What facilities are available to residents of Sheepcote Road?
The facilities available to residents of Sheepcote Road are Balcony, Chill out Place and Social Space.
Which school is located near to Sheepcote Road?
Elmgrove Children's Centre, Elmgrove Primary School & Nursery, St Anselm's Catholic Primary School, located near Sheepcote Road.
Which Subway stations is located near to Sheepcote Road?
Harrow-on-the-Hill, Kenton, Harrow & Wealdstone, Harrow-on-the-Hill, Kenton, Northwick Park, located near Sheepcote Road.
Need help finding your new home?
Need help finding your new home?

Leave a request and specialists will select the property

By submitting this form, you accept our Terms & conditions & Privacy policy Please note that 1newhomes will send the above details to house developer or agent. This site is protected by reCAPTCHA and the Google.

We use our own and third-party cookies to collect data related to your activity on our site for analysis and to improve your experience. By continuing to use our site, you consent to the use of these cookies. Learn more

Ok
Request Callback
Whatsapp