Property in: LONDON
Property http://www.productontology.org/doc/Real_estate City View for sale by Lanes Exclusive Homes – New flats in Whetstone. ▶ Price from £1,100,000. Download Brochure. Whetstone, Greater London, N20 0AD. City View 51.628581282109 -0.15777557560931
City View Lanes Exclusive Homes City View for sale by Lanes Exclusive Homes – New flats in Whetstone. ▶ Price from £1,100,000. Download Brochure. Whetstone, Greater London, N20 0AD. https://1newhomes.com/assets/cities/spb/houses/lanes-exclusive-homes-london/city-view-london/1-1.jpg InStock GBP City View for sale by Lanes Exclusive Homes – New flats in Whetstone. ▶ Price from £1,100,000. Download Brochure. Whetstone, Greater London, N20 0AD. 1100000

City View

Developer: Lanes Exclusive Homes Address: Whetstone, Greater London, N20 0AD – Whetstone Station: Totteridge & WhetstoneSouthgate Completion: Ready to move Floor area: 160 – 160 sqm
Bedrooms:
from 1,100,000
AI Summary

City View, N20 0AD offers 4 bedroom townhouses of 159.98 sq m from £1,100,000 (£6,876 per sq m) in gated, elevated Whetstone, with Totteridge and Whetstone Underground around 1.0 kilometre away for direct central London access.

With only a limited number of 3 storey, 4 bedroom houses at circa 1722 sq ft, City View targets family buyers seeking rare freehold style space, strong school catchments and fast links via Totteridge and Whetstone and Oakleigh Park to the City.

10 Year structural warranty.

Properties in this development on 26 March 2026

Bedrooms
Square
Price, sqm
for all
4-bedroom
from 160 sqm
from 6,876
from 1,100,000
Availability
Note: 1 Sq.M = 10.76 Sq.Ft

More information

Key features

Floors: 2
Flats: 6
Redevelopment
Townhouses
Houses
Educational options
Park & riverside walk
Chill out place
Local cafes
Parking
Social space

What are you looking for?

Step 1 of 6
Select the number of bedrooms
Select your budget
What is your purpose of purchase?
What is your preferred payment method?
When do you plan to move
Leave a request and assistant will select the property

By submitting this form, you accept our Terms & conditions & Privacy policy Please note that 1newhomes will send the above details to house developer or agent. This site is protected by reCAPTCHA and the Google.

A virtual assistant
ready to help you
Virtual assistant

What are you looking for?

Payment options

Mortgage
Part Exchange
Shared Ownership
Investment Purchase

Features

DOWNLOAD BROCHURE

Interior design

Interior design – City View Interior design – City View Interior design – City View
3

Site Plan

Site plan – City View
1

Description

Buying an apartment in London – How much ROI and profit can it bring in 5 years?

Based on the data by PwC on property prices and rents dynamics.*
2,5—4,5%
annual rental income
5—10%
annual price growth per square meter
Price growth
+ £440,000
Rental income
+ £200,000
£1,100,000
investment
capital
£1,740,000
total capital

Local area map

Stations
Schools
Bus Stops
Clinics
Supermarkets
Cafes
GYM
Full address: Whetstone, Greater London, N20 0AD – Whetstone / N20 / North London / Zone 4

Public Facilities

Schools
Oakleigh School
0.4
mil
10
min
Sacred Heart Primary School
0.4
mil
10
min
All Saints C Of E Primary School
0.5
mil
12
min
Subway stations
1.1
mil
24
min
Train stations
Oakleigh Park
0.9
mil
19
min
Bus stations
Whetstone High Road / Friern Barnet Lane (Stop E)
0.9
mil
21
min
High Road Whetstone / Athenaeum Road (Stop M)
0.9
mil
20
min
Athenaeum Road (Stop J)
0.9
mil
21
min
Cafes
Shell
0.1
mil
3
min
Cafe Rodi
0.3
mil
7
min
Pots of Art
0.7
mil
16
min
Parks
Barfield Avenue Playground
0.2
mil
5
min
Oakleigh Park Rail Cutting (Nature Reserve)
0.6
mil
15
min
Public Footpath to Osidge Lane
0.7
mil
14
min
Airports
Gatwick
76.2
mil
89
min
London City
18.2
mil
38
min
Heathrow
22.4
mil
51
min

Neighbourhood around City View

Neighbourhood around City View

About North London

North London is home to many of the most sought-after neighbourhoods in the capital. It is a perfect mix of cosy village centres, architectural masterpieces and classy high streets. It is little surprise that 4 million Londoners (half of the total population) live in North London. Currently, its favourable market offers and affordable housing attract a lot of local and international buyers facing challenging economical settings and increased interest rates. More about North London →

Sales office

Sales office

Learn more

Latest news

Mortgage calculator

Price
Repayment term
Deposit, £
Interest rate, %
£00 000

per month

Stamp duty calculator

Price
I am …

Our Stamp Duty calculator provides illustrative figures for the Stamp Duty (SDLT) in England and Northern Ireland, a required tax paid on property purchases. Read more about SDLT and how it works.

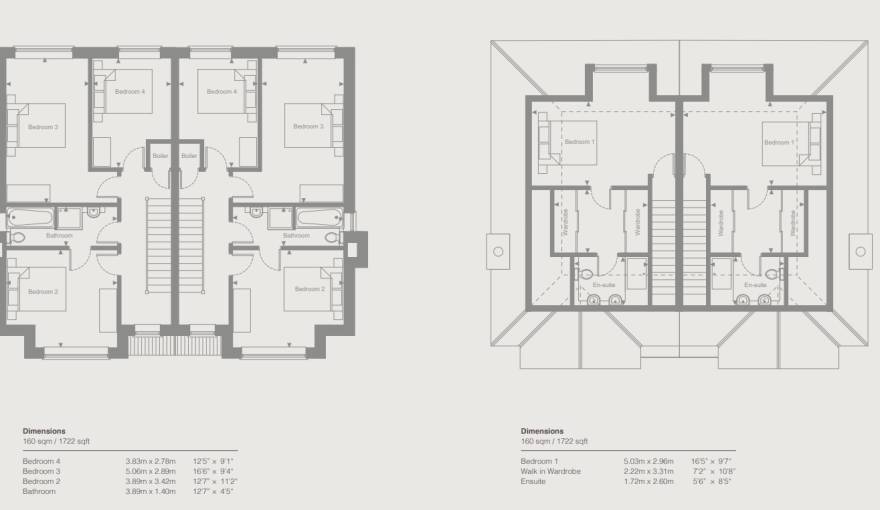
Floor plans for City View

Developer

Similar homes you may like

Developer offers

FAQs about City View

Property Details

Expand all
Who is the developer of City View?
Lanes Exclusive Homes is the developer of City View.
What is the address of City View?
The address of City View is Whetstone, Greater London, N20 0AD.
How many flats are there in City View?
The total number of flats in City View is 6.
How many total floors does City View have?
The total number of floors that City View has is 2 floors.
What is the zone number of City View?
The zone number of City View is Zone 4.
Where can I find the City View site plan?
You can view the City View Site Plan in the Site Plan section above.
What is the postcode of City View?
The postcode of City View is N20
What is the completion date of City View?
The completion date of City View is Ready to move

Prices

Expand all
What is the price range of flats in City View?
The total price range of flats in City View is £1.1M – £1.1M

Amenities

Expand all
What facilities are available to residents of City View?
The facilities available to residents of City View are Chill out Place, Local Cafes and Park & Riverside Walk.
Which school is located near to City View?
No one Schools are located near City View.
Which Subway stations is located near to City View?
No one Subways stations are located near City View.
Need help finding your new home?
Need help finding your new home?

Leave a request and specialists will select the property

By submitting this form, you accept our Terms & conditions & Privacy policy Please note that 1newhomes will send the above details to house developer or agent. This site is protected by reCAPTCHA and the Google.

We use our own and third-party cookies to collect data related to your activity on our site for analysis and to improve your experience. By continuing to use our site, you consent to the use of these cookies. Learn more

Ok
Request Callback
Whatsapp