Property in: LONDON
Property http://www.productontology.org/doc/Real_estate The Blenheim for sale by Lanes Exclusive Homes – New flats in Barnet. ▶ Price from £650,000. Download Brochure. The Blenheim, Barnet, EN5. The Blenheim 51.653693585591 -0.21010832829424
The Blenheim Lanes Exclusive Homes The Blenheim for sale by Lanes Exclusive Homes – New flats in Barnet. ▶ Price from £650,000. Download Brochure. The Blenheim, Barnet, EN5. https://1newhomes.com/assets/cities/spb/houses/lanes-exclusive-homes-london/the-blenheim-london/1-1.jpg InStock GBP The Blenheim for sale by Lanes Exclusive Homes – New flats in Barnet. ▶ Price from £650,000. Download Brochure. The Blenheim, Barnet, EN5. 650000

The Blenheim

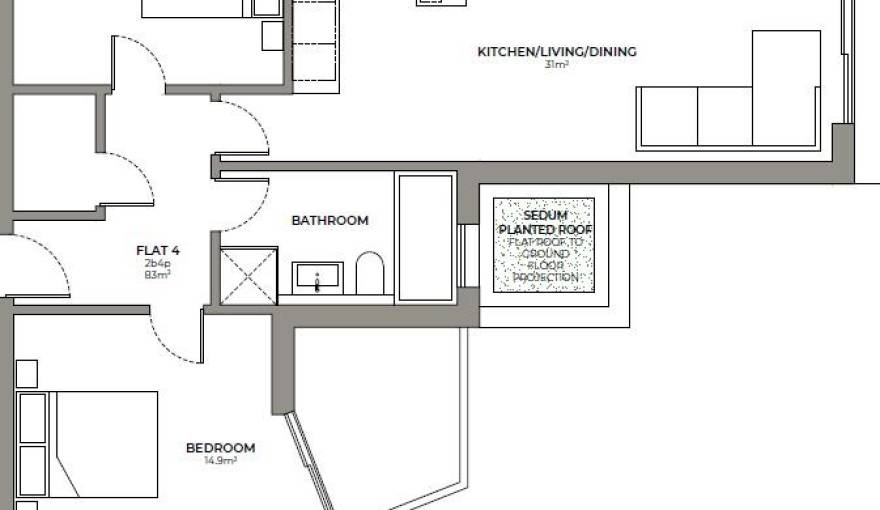
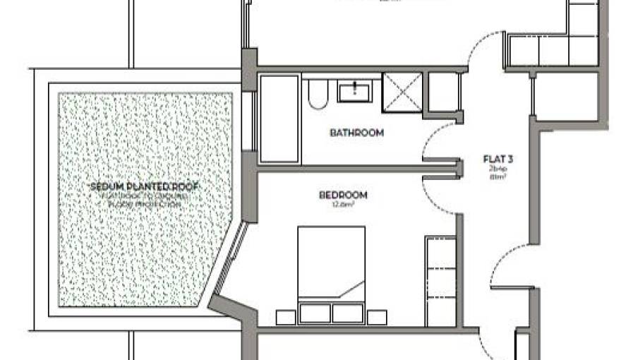
Developer: Lanes Exclusive Homes Address: The Blenheim, Barnet, EN5 – Barnet Station: High Barnet Completion: Ready to move Floor area: 81 – 94 sqm
Bedrooms:
from 650,000
AI Summary

The Blenheim EN5 offers just 8 low density homes opposite Ravenscroft Gardens, with gated parking and Waitrose, Tesco and cafés within 800 m, plus High Barnet Underground 1.3 km away for direct Northern line access to Central London.

With 2 bedroom units from £650,000 (£8,033 per square metre, 80.9 square metres) and 3 bedroom units at £800,000 (£8,518 per square metre, 93.9 square metres), buyers gain prime Barnet schooling, hospital 630 m away and fast links to Moorgate via New Barnet.

Ravenscroft Gardens nearby.

Properties in this development on 22 February 2026

Bedrooms
Square
Price, sqm
for all
2-bedroom
from 81 sqm
from 8,033
from 650,000
Availability
3-bedroom
from 94 sqm
from 8,518
from 800,000
Availability
Note: 1 Sq.M = 10.76 Sq.Ft

More information

Key features

Floors: 2
Flats: 3
Apartments
Redevelopment
Educational options
Balcony
Park & riverside walk
Chill out place
Local cafes
Parking
Social space

What are you looking for?

Step 1 of 6
Select the number of bedrooms
Select your budget
What is your purpose of purchase?
What is your preferred payment method?
When do you plan to move
Leave a request and assistant will select the property

By submitting this form, you accept our Terms & conditions & Privacy policy Please note that 1newhomes will send the above details to house developer or agent. This site is protected by reCAPTCHA and the Google.

A virtual assistant
ready to help you
Virtual assistant

What are you looking for?

Payment options

Mortgage
Part Exchange
Shared Ownership
Investment Purchase

Features

Interior design

Interior design – The Blenheim Interior design – The Blenheim Interior design – The Blenheim
9

Description

Price trends for The Blenheim

All

Buying an apartment in London – How much ROI and profit can it bring in 5 years?

Based on the data by PwC on property prices and rents dynamics.*
2,5—4,5%
annual rental income
5—10%
annual price growth per square meter
Price growth
+ £260,000
Rental income
+ £120,000
£650,000
investment
capital
£1,030,000
total capital

Local area map

Stations
Schools
Bus Stops
Clinics
Supermarkets
Cafes
GYM
Full address: The Blenheim, Barnet, EN5 – Barnet / EN5 / North London / Zone 5

Public Facilities

Schools
Foulds School
0.3
mil
7
min
Christ Church CE Primary School & Nursery
0.7
mil
14
min
Let's Get Learning
0.5
mil
12
min
Subway stations
0.8
mil
17
min
Train stations
1.9
mil
40
min
2.1
mil
45
min
Bus stations
The Spires (Stop S)
0.4
mil
9
min
St. Albans Road (Stop B)
0.5
mil
11
min
St Albans Road Hadley Green (Stop A)
0.5
mil
12
min
Cafes
My Kitchen Cafe
0.1
mil
3
min
Perk Coffee Bar
0.3
mil
6
min
Costa Coffee
0.4
mil
8
min
Parks
Raven tree
0.1
mil
2
min
Ravenscroft Gardens
0.1
mil
2
min
Old Court House Recreation Ground
0.5
mil
11
min
Airports
Gatwick
71.2
mil
80
min
London City
21.2
mil
48
min
Heathrow
33.9
mil
43
min

Neighbourhood around The Blenheim

Neighbourhood around The Blenheim

About North London

North London is home to many of the most sought-after neighbourhoods in the capital. It is a perfect mix of cosy village centres, architectural masterpieces and classy high streets. It is little surprise that 4 million Londoners (half of the total population) live in North London. Currently, its favourable market offers and affordable housing attract a lot of local and international buyers facing challenging economical settings and increased interest rates. More about North London →

Sales office

Sales office

Learn more

Latest news

Mortgage calculator

Price
Repayment term
Deposit, £
Interest rate, %
£00 000

per month

Stamp duty calculator

Price
I am …

Our Stamp Duty calculator provides illustrative figures for the Stamp Duty (SDLT) in England and Northern Ireland, a required tax paid on property purchases. Read more about SDLT and how it works.

Floor plans for The Blenheim

Video tour for The Blenheim

Developer

Similar homes you may like

Developer offers

FAQs about The Blenheim

Property Details

Expand all
Who is the developer of The Blenheim?
Lanes Exclusive Homes is the developer of The Blenheim.
What is the address of The Blenheim?
The address of The Blenheim is The Blenheim, Barnet, EN5.
How many flats are there in The Blenheim?
The total number of flats in The Blenheim is 3.
How many total floors does The Blenheim have?
The total number of floors that The Blenheim has is 2 floors.
What is the zone number of The Blenheim?
The zone number of The Blenheim is Zone 5.
Where can I find the The Blenheim site plan?
You can view the The Blenheim Site Plan in the Site Plan section above.
What is the postcode of The Blenheim?
The postcode of The Blenheim is EN5
What is the completion date of The Blenheim?
The completion date of The Blenheim is Ready to move

Prices

Expand all
What is the price range of flats in The Blenheim?
The total price range of flats in The Blenheim is £650K – £800K

Amenities

Expand all
What facilities are available to residents of The Blenheim?
The facilities available to residents of The Blenheim are Educational Options, Park & Riverside Walk and Balcony.
Which school is located near to The Blenheim?
No one Schools are located near The Blenheim.
Which Subway stations is located near to The Blenheim?
No one Subways stations are located near The Blenheim.
Need help finding your new home?
Need help finding your new home?

Leave a request and specialists will select the property

By submitting this form, you accept our Terms & conditions & Privacy policy Please note that 1newhomes will send the above details to house developer or agent. This site is protected by reCAPTCHA and the Google.

We use our own and third-party cookies to collect data related to your activity on our site for analysis and to improve your experience. By continuing to use our site, you consent to the use of these cookies. Learn more

Ok
Request Callback
Whatsapp