Property in: LONDON
Property http://www.productontology.org/doc/Real_estate Russell Hill Road for sale by Hexagon Housing Association – New flats in Purley. ▶ Price from £350,000. Download Brochure. 41 Russell Hill Rd, Purley CR8 2LD. Russell Hill Road 51.342046911562 -0.11812963144572
Russell Hill Road Hexagon Housing Association Russell Hill Road for sale by Hexagon Housing Association – New flats in Purley. ▶ Price from £350,000. Download Brochure. 41 Russell Hill Rd, Purley CR8 2LD. https://1newhomes.com/assets/cities/spb/houses/hexagon-london/russell-hill-road-london/1-2.jpg InStock GBP Russell Hill Road for sale by Hexagon Housing Association – New flats in Purley. ▶ Price from £350,000. Download Brochure. 41 Russell Hill Rd, Purley CR8 2LD. 350000

Russell Hill Road

Developer: Hexagon Housing Association Address: 41 Russell Hill Rd, Purley CR8 2LD – Purley Station: PurleyPurley OaksReedham Completion: Ready to move Floor area: 50 – 85 sqm
Bedrooms:
from 350,000
AI Summary

Russell Hill Road, CR8 offers 12 Shared Ownership flats from £350,000, with one to three bedrooms (50–86.2 m²) and high specs, 10 minutes walk from Purley Station with 25 minute trains to London Bridge and Victoria.

With one bedroom units at about £7,000 per m² and three bedrooms at about £5,903 per m², this Purley scheme near the A23 and M23 gives cheaper entry to South London Zone 6 while benefiting from Croydon town centre 3.5 miles away.

Contemporary apartments with integrated appliances, Silestone worktops and defined layouts in a well-established commuter location.

Properties in this development on 16 April 2026

Bedrooms
Square
Price, sqm
for all
1-bedroom
from 50 sqm
from 7,000
from 350,000
Availability
2-bedroom
from 76 sqm
from 6,283
from 475,000
Availability
3-bedroom
from 85 sqm
from 5,903
from 500,000
Availability
Note: 1 Sq.M = 10.76 Sq.Ft

More information

Key features

Floors: 4
Flats: 28
Apartments
Redevelopment
Roof terrace
Educational options
Balcony
Health club
Park & riverside walk
Chill out place
Local cafes
Parking 6 places
GYM
Social space
Security

What are you looking for?

Step 1 of 6
Select the number of bedrooms
Select your budget
What is your purpose of purchase?
What is your preferred payment method?
When do you plan to move
Leave a request and assistant will select the property

By submitting this form, you accept our Terms & conditions & Privacy policy Please note that 1newhomes will send the above details to house developer or agent. This site is protected by reCAPTCHA and the Google.

A virtual assistant
ready to help you
Virtual assistant

What are you looking for?

Payment options

Mortgage
Part Exchange
Shared Ownership
Investment Purchase

Features

Interior design

Interior design – Russell Hill Road Interior design – Russell Hill Road Interior design – Russell Hill Road
3

Site Plan

Site plan – Russell Hill Road
1

Description

Price trends for Russell Hill Road

All

Buying an apartment in London – How much ROI and profit can it bring in 5 years?

Based on the data by PwC on property prices and rents dynamics.*
2,5—4,5%
annual rental income
5—10%
annual price growth per square meter
Price growth
+ £140,000
Rental income
+ £60,000
£350,000
investment
capital
£550,000
total capital

Local area map

Stations
Schools
Bus Stops
Clinics
Supermarkets
Cafes
GYM
Full address: 41 Russell Hill Rd, Purley CR8 2LD – Purley / CR8 / South London / Zone 6

Public Facilities

Schools
Margaret Roper Catholic Primary School, Purley
0.3
mil
8
min
Cumnor House Boy's School
0.8
mil
18
min
Wallington Primary Academy
1.3
mil
28
min
Train stations
0.4
mil
10
min
1
mil
24
min
1.2
mil
28
min
Bus stations
Russell Hill Road (Stop B)
0.1
mil
3
min
Foxley Hill Road (Stop Q)
0.5
mil
12
min
Purley Oaks Station (Stop GB)
1.2
mil
26
min
Cafes
Sainsbury
0.3
mil
7
min
Costa Coffee
0.3
mil
7
min
STAR EXPRESS CAFE
0.3
mil
6
min
Parks
Rotary Field
0.5
mil
11
min
Cumnor House School Sports Ground
0.8
mil
19
min
John Fisher Playing Fields
0.7
mil
17
min
Airports
Gatwick
18.4
mil
32
min
London City
22.2
mil
66
min
Heathrow
41.9
mil
56
min

Neighbourhood around Russell Hill Road

Neighbourhood around Russell Hill Road

About South London

Historically, South London was seen as less connected due to the limited reach of the Underground network. This allowed it to maintain a distinct, decentralized character across its boroughs. Today, the area is experiencing systematic regeneration, turning former industrial or overlooked zones into serious residential targets. More about South London →

Sales office

Sales office

Learn more

Latest news

Mortgage calculator

Price
Repayment term
Deposit, £
Interest rate, %
£00 000

per month

Stamp duty calculator

Price
I am …

Our Stamp Duty calculator provides illustrative figures for the Stamp Duty (SDLT) in England and Northern Ireland, a required tax paid on property purchases. Read more about SDLT and how it works.

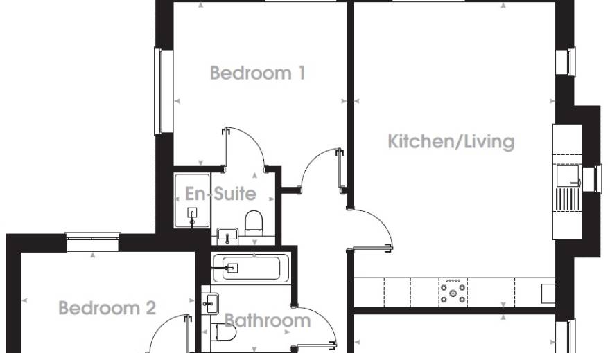
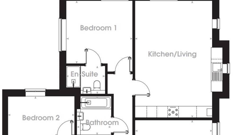
Floor plans for Russell Hill Road

Developer

Similar homes you may like

Developer offers

FAQs about Russell Hill Road

Property Details

Expand all
Who is the developer of Russell Hill Road?
Hexagon Housing Association is the developer of Russell Hill Road.
What is the address of Russell Hill Road?
The address of Russell Hill Road is 41 Russell Hill Rd, Purley CR8 2LD.
How many flats are there in Russell Hill Road?
The total number of flats in Russell Hill Road is 28.
How many total floors does Russell Hill Road have?
The total number of floors that Russell Hill Road has is 4 floors.
What is the zone number of Russell Hill Road?
The zone number of Russell Hill Road is Zone 6.
Where can I find the Russell Hill Road site plan?
You can view the Russell Hill Road Site Plan in the Site Plan section above.
What is the postcode of Russell Hill Road?
The postcode of Russell Hill Road is CR8
What is the completion date of Russell Hill Road?
The completion date of Russell Hill Road is Ready to move

Prices

Expand all
What is the price range of flats in Russell Hill Road?
The total price range of flats in Russell Hill Road is £350K – £500K

Amenities

Expand all
What facilities are available to residents of Russell Hill Road?
The facilities available to residents of Russell Hill Road are Balcony, Chill out Place and Local Cafes.
Which school is located near to Russell Hill Road?
No one Schools are located near Russell Hill Road.
Which Subway stations is located near to Russell Hill Road?
No one Subways stations are located near Russell Hill Road.
Need help finding your new home?
Need help finding your new home?

Leave a request and specialists will select the property

By submitting this form, you accept our Terms & conditions & Privacy policy Please note that 1newhomes will send the above details to house developer or agent. This site is protected by reCAPTCHA and the Google.

We use our own and third-party cookies to collect data related to your activity on our site for analysis and to improve your experience. By continuing to use our site, you consent to the use of these cookies. Learn more

Ok
Request Callback
Whatsapp